PARCEL 6585915256 ADDRESS 360 HARRISON AVE OWNER SHOFFEITT, ALPHA K

image1

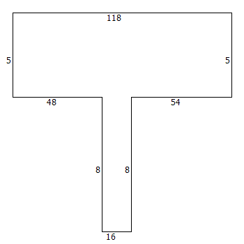
Building ID: 6585915256.1






image1

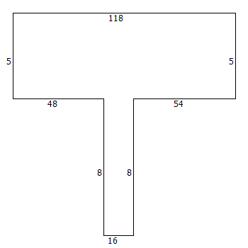
Building ID: 6585915256.2






image1

Building ID: 6585915256.3






© 2010 Macon County, North Carolina
5 West Main Street • Franklin, NC 28734
Phone: 828-349-2000