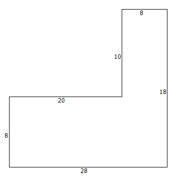
PARCEL 6593860972 ADDRESS 44 HIDDEN VALLEY DR OWNER CONNER, GERALDINE

image1

Building ID: 6593860972.1





© 2010 Macon County, North Carolina
5 West Main Street • Franklin, NC 28734
Phone: 828-349-2000